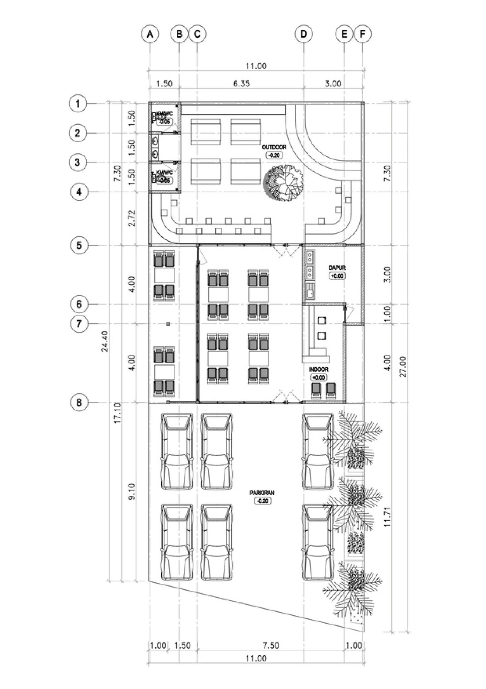
Menampilkan desain tropis modern yang mengundang, Sabine Eat and Co. berdiri sebagai oase bersantai di tengah kawasan Gamping. Bangunan dengan fasad atap pelana simetris dan permainan roster serta elemen kayu ini menciptakan nuansa hangat dan terbuka. Ruang dalam dan area taman belakang diatur selaras untuk menciptakan alur sirkulasi pengunjung yang alami, mendukung pengalaman makan yang nyaman baik di dalam maupun luar ruangan.
- Fasad ikonik dengan kombinasi roster, kayu vertikal, dan bukaan kaca besar yang menyambut cahaya alami.
- Ruang indoor-outdoor terintegrasi, menciptakan suasana santai dengan banyak pilihan area duduk.
- Teras belakang dengan pohon eksisting yang dipertahankan, dilengkapi area panggung kecil untuk event atau live music.
- Tata interior ergonomis, mendukung sirkulasi pengunjung yang lancar serta pencahayaan alami optimal sepanjang hari.


