Sebuah hunian kost dua lantai dengan sentuhan modern tropis kontemporer yang dirancang bukan hanya untuk kenyamanan penghuni, tetapi juga untuk meningkatkan nilai investasi jangka panjang. Permainan fasad dengan material bertekstur, aksen vertikal, dan pencahayaan hangat menciptakan kesan eksklusif yang elegan sejak pandangan pertama.
- Fasad Geometris Modern: Kombinasi kisi artistik, bidang kaca lebar, dan tanaman rambat yang memberikan kesan dinamis serta estetika tropis.
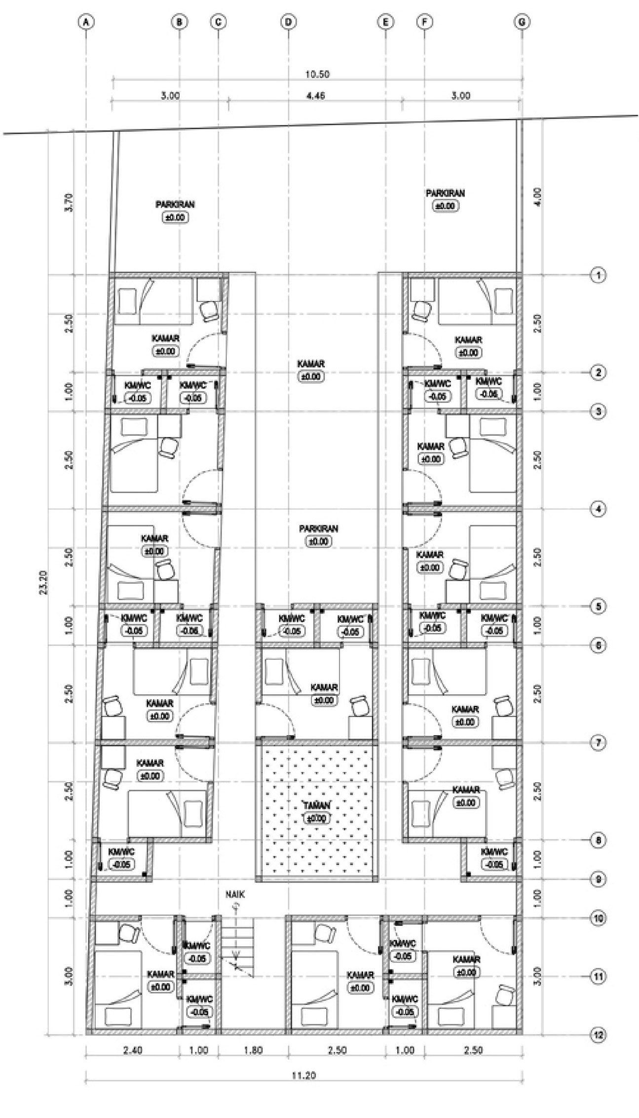
- Parkir Luas di Area Bawah: Dirancang untuk menampung banyak kendaraan, ideal untuk kost eksklusif dengan fasilitas premium.
- Pencahayaan Alami Maksimal: Bukaan besar pada fasad membantu sirkulasi udara dan cahaya matahari masuk ke dalam bangunan secara optimal.
- Cocok untuk Kawasan Tumbuh: Menjadi pilihan ideal di area Gamping yang terus berkembang dan strategis bagi mahasiswa maupun profesional muda.



