Kotemporer - Tropical

Proyek Motel Gamping

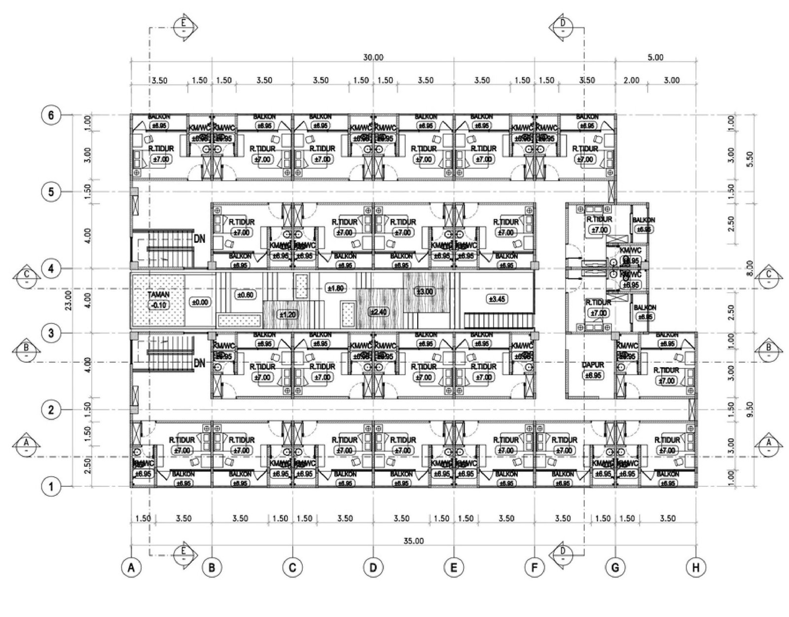
Motel Gamping hadir sebagai solusi penginapan kontemporer yang memadukan fungsionalitas dan kemewahan dalam balutan desain modern tropis. Didesain tiga lantai dengan area parkir terbuka di lantai dasar, bangunan ini menonjolkan aksen ornamen emas pada fasad serta atrium tengah yang ikonik, menciptakan suasana nyaman dan elegan bagi para tamu yang menginap.