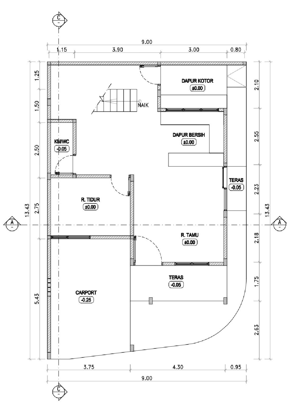
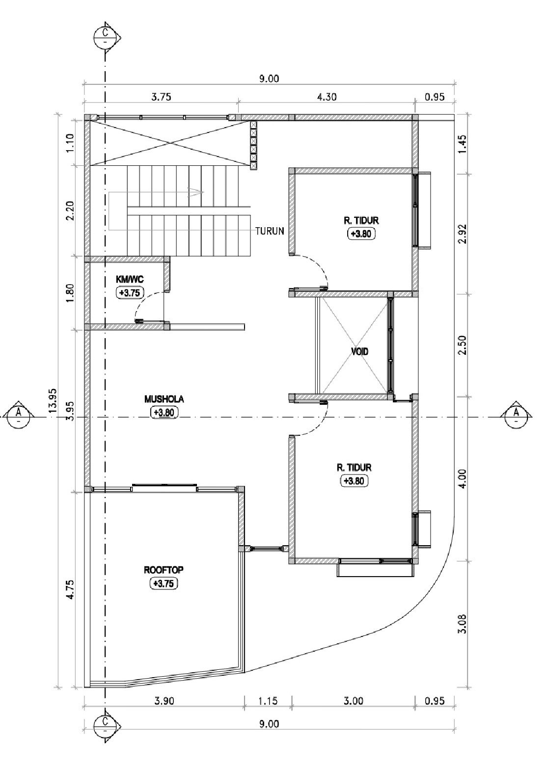
Modern - Tropical

Proyek Rumah Tinggal Sleman (Griya Safir)

Kami menghadirkan desain rumah 2 lantai bergaya modern tropis kontemporer yang tampil bersih, dinamis, dan menyatu dengan iklim tropis. Rumah ini cocok untuk keluarga modern yang ingin hunian estetis, terang, dan nyaman di dalam lingkungan perumahan seperti Griya Safir.