Proyek rumah tinggal ini mengusung konsep Modern Tropis dengan sentuhan kontemporer yang ringan namun tetap menawan. Fasad rumah memadukan permainan garis geometris, roster sebagai elemen penyaring cahaya alami, serta bukaan besar untuk sirkulasi udara yang optimal. Tampilan minimalis diperkuat dengan material batu alam dan penataan lanskap yang sederhana, menjadikan rumah ini nyaman dan menyatu dengan lingkungan tropis Indonesia.
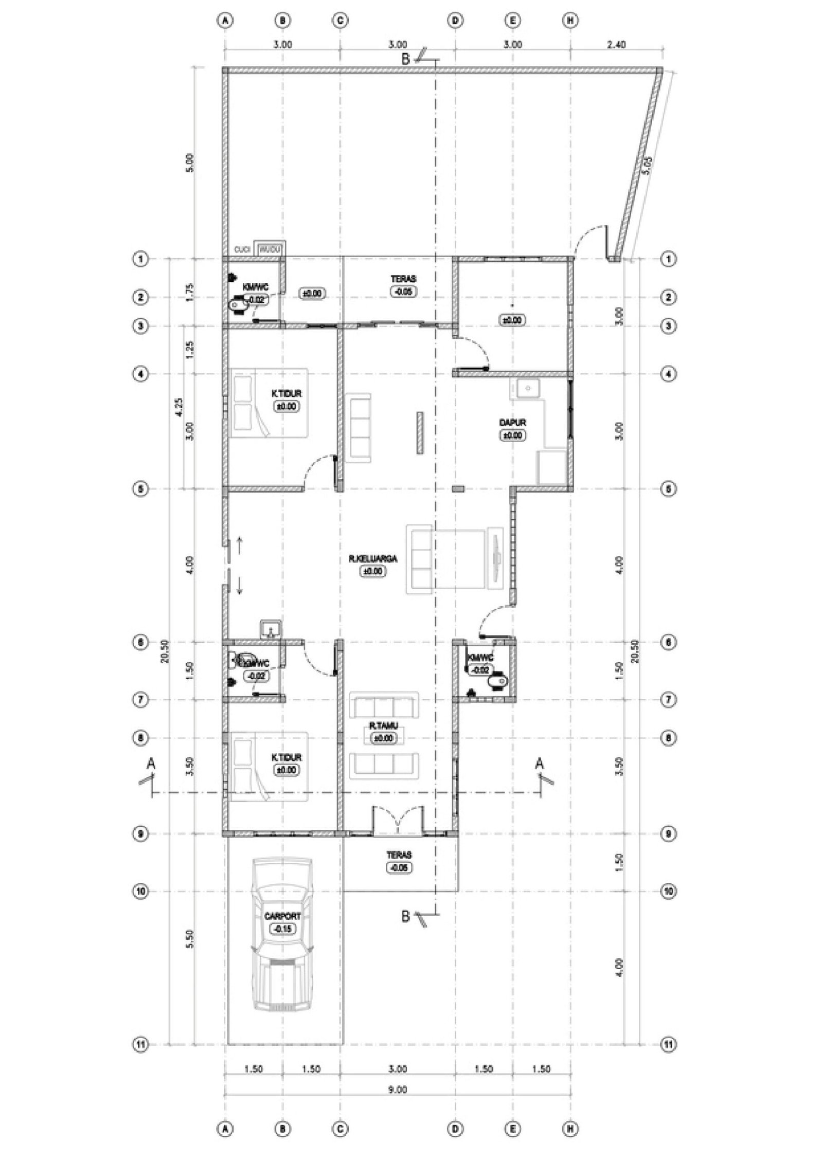
- Luas bangunan efisien dengan tata ruang 2 kamar tidur + wc, 1 kamar mandi, ruang keluarga, ruang tamu, dapur, dan area servis di belakang.
- Desain atap miring menyesuaikan arah cahaya dan curah hujan tropis, sekaligus mempertegas karakter bangunan modern.
- Fasad dengan roster & tanaman rambat berfungsi sebagai filter panas serta memberikan estetika hijau yang menenangkan.
- Area carport dan taman depan menambah nilai fungsi dan estetika, cocok untuk rumah di perumahan urban maupun semi-urban.


