Desain Rumah Istana Compact: Solusi Mewah di Lahan Terbatas
Klasik - Modern

Desain Rumah Istana Compact: Solusi Mewah di Lahan Terbatas

Memiliki rumah dengan desain megah seperti istana tidak selalu membutuhkan lahan luas dan anggaran miliaran. Berkat kemajuan desain arsitektur, kini banyak keluarga Indonesia dapat menikmati gaya rumah istana dalam versi compact—rumah mungil namun tetap tampil elegan, mewah, dan fungsional. Artikel ini akan membahas solusi desain, inspirasi, serta tips agar hunian kecil Anda tetap terasa seperti istana.

Apa Itu Rumah Istana Compact?

Rumah istana compact adalah hunian berukuran kecil hingga sedang (biasanya di bawah 120 m²), namun dirancang dengan estetika khas istana: ornamen klasik, simetri elegan, dan permainan tinggi ruang. Gaya ini menggabungkan kemewahan dengan kepraktisan—cocok untuk keluarga muda, pemilik lahan terbatas, atau mereka yang mengutamakan keindahan dalam kesederhanaan.

Fasad rumah istana compact bergaya klasik elegan di lahan terbatas

Keunggulan Rumah Compact Bergaya Istana

  1. Tampilan Elegan Meski Minimalis
    Detail seperti pilar kecil, jendela lengkung, dan cornice dekoratif membuat rumah tampak mewah dari luar.
  2. Fungsi Maksimal di Lahan Terbatas
    Penataan ruang efisien: dapur, ruang tamu, kamar, dan kamar mandi bisa diatur tanpa kesan sempit.
  3. Biaya Bangun Lebih Terjangkau
    Dengan desain profesional, rumah istana compact bisa dibangun mulai dari 400–600 juta rupiah, tergantung bahan dan tingkat detail.
  4. Fleksibel untuk Berbagai Lahan
    Bisa dibangun di kavling perumahan standar (60–90 m²) bahkan di area hook atau sudut jalan.

Inspirasi Desain Interior & Eksterior

  • Fasad: Gunakan cat putih tulang, list keemasan, dan atap mansard bergaya Eropa.
  • Ruang Tamu: Tambahkan chandelier kecil, sofa beludru, dan cermin besar untuk kesan luas.
  • Kamar Tidur: Gunakan panel dinding dan warna-warna hangat untuk suasana tenang dan mewah.
  • Taman Depan: Tanaman simetris, air mancur mini, dan pagar tempa akan menambah nuansa kerajaan.
Desain interior ruang tamu rumah mungil dengan sentuhan istana

Tips Mendesain Rumah Istana Compact

  1. Prioritaskan Proporsi
    Hindari elemen berlebihan, fokus pada keselarasan bentuk dan ukuran.
  2. Gunakan Material Premium Secara Selektif
    Aplikasikan granit atau marmer hanya di area tertentu seperti foyer atau meja dapur.
  3. Pilih Warna Netral dan Elegan
    Warna putih, beige, emas, dan abu-abu muda menjadi kombinasi aman dan berkelas.
  4. Maksimalkan Pencahayaan Alami
    Jendela besar dan skylight akan memberikan kesan lapang dan mewah tanpa banyak biaya listrik.
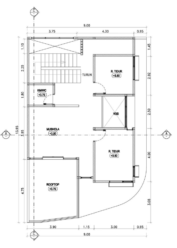
Denah rumah compact dua lantai dengan gaya istana modern

Kesimpulan

Rumah kecil bukan berarti harus tampil biasa. Dengan pendekatan desain yang tepat, Anda bisa memiliki hunian mungil yang tampil megah seperti istana tanpa melupakan aturan pemerintah setempat. Gaya compact-istana bukan hanya tren, tapi solusi hunian cerdas bagi keluarga Indonesia masa kini.

Ingin Konsultasi Desain Gratis?

Kunjungi blog.kunciistana.id dan isi formulir konsultasi desain rumah impian Anda bersama tim arsitek profesional kami.
Karena setiap keluarga berhak tinggal di Istana.

Leave a Reply

Your email address will not be published. Required fields are marked *