Rumah tinggal ini dirancang untuk Pak Ary di kawasan Jetakan, Sleman, dengan konsep tropis modern yang mengutamakan kesederhanaan bentuk namun tetap elegan. Area outdoor menjadi highlight utama dengan kolam renang privat, taman kecil, dan pencahayaan alami yang maksimal untuk menjadikannya tempat tinggal ideal bagi keluarga yang mendambakan kenyamanan serta keindahan ruang luar.
- Desain Fasad Elegan: Kombinasi batu alam, roster dekoratif, dan elemen pagar motif laser cut memberikan tampilan rumah yang berkelas dan privat.
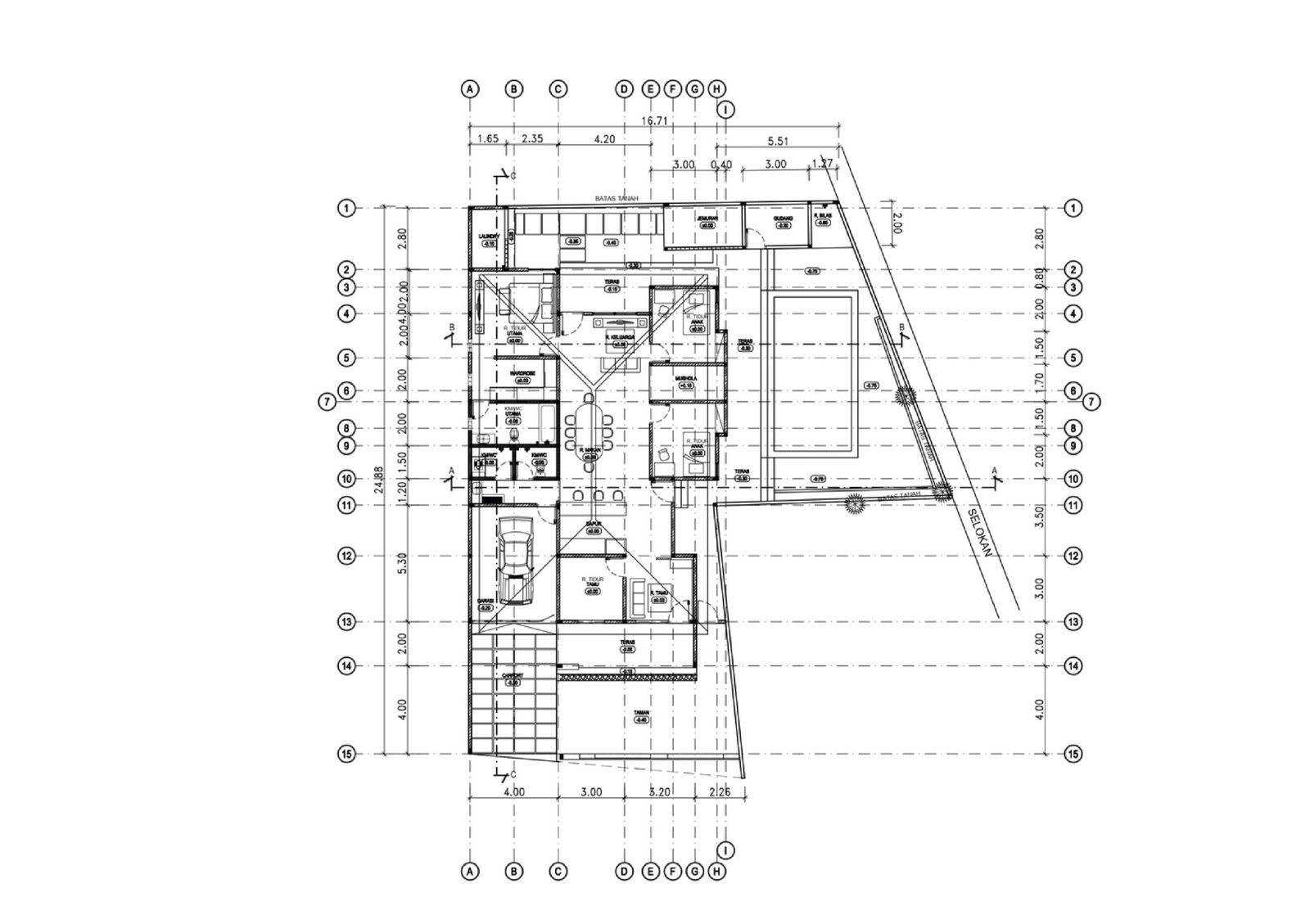
- Area Kolam Renang Privat: Didesain sebagai pusat relaksasi, dengan sun deck dan ruang bilas outdoor yang fungsional.
- Pencahayaan & Sirkulasi Alami: Jendela besar dan kisi-kisi ventilasi memaksimalkan cahaya dan udara masuk ke seluruh ruangan.
- Konsep Interior Terpadu: Ruang tamu, dapur, dan akses ke kolam saling terhubung tanpa sekat, menciptakan suasana lapang dan hangat.


