Villa ini mengusung konsep arsitektur tropis modern yang menekankan garis tegas, dominasi warna putih bersih, dan bukaan lebar ke arah pemandangan. Terletak di atas kontur curam, villa ini dirancang untuk memberikan pengalaman privat dengan kolam renang infinity yang langsung menghadap lanskap hijau maupun laut terbuka.
- Fasad putih minimalis dipadukan dengan railing kayu dan vegetasi tropis, menciptakan tampilan estetis yang timeless dan menyegarkan.
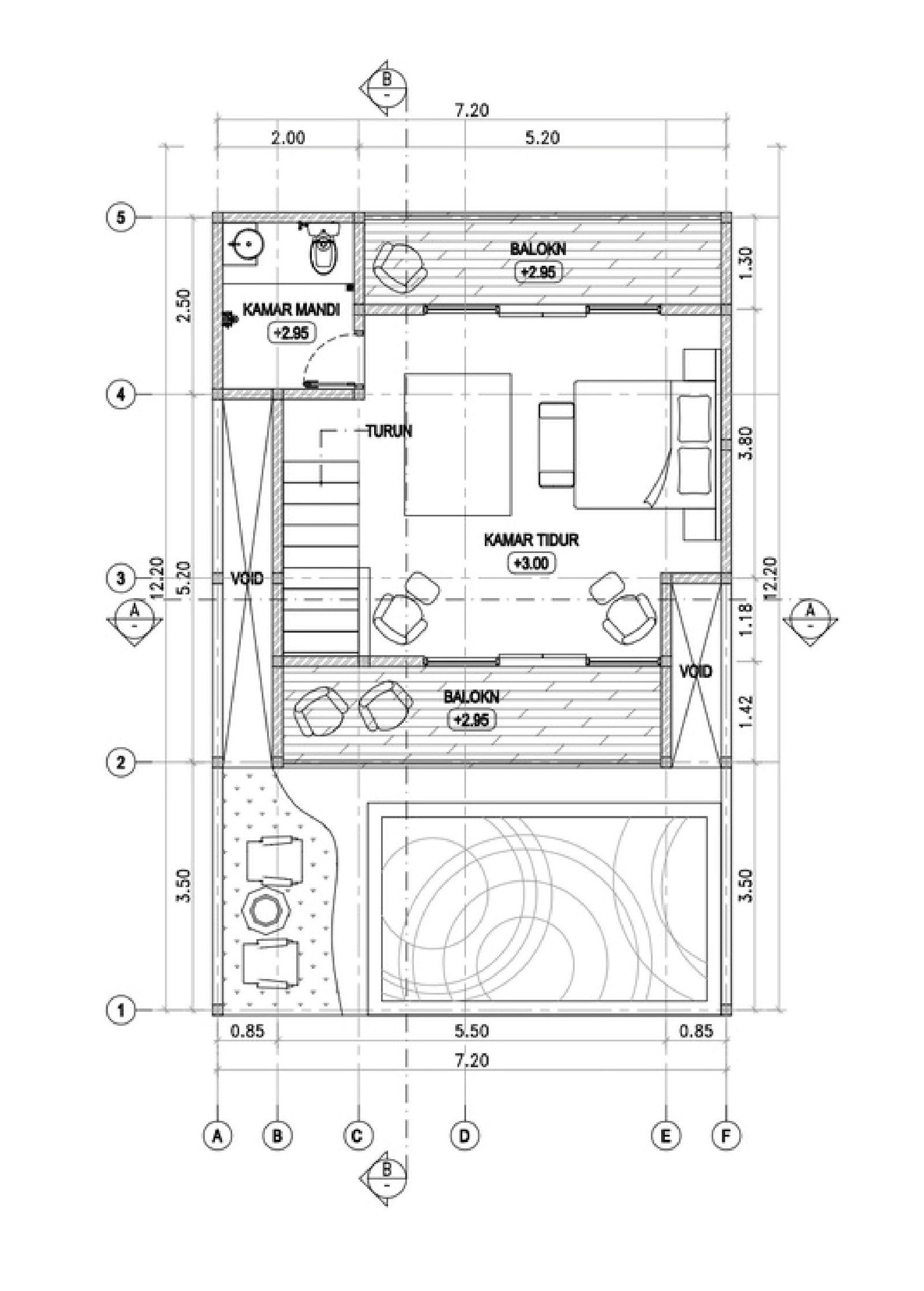
- Kolam renang pribadi di area depan menjadi daya tarik utama, memberikan kesan resort eksklusif langsung dari ruang tamu.
- Tata letak split-level menciptakan koneksi visual vertikal antara lantai atas dan bawah, memaksimalkan kenyamanan dan pencahayaan alami.
- Setiap unit dirancang dengan akses privat yang tidak saling mengganggu, ideal untuk hunian berlibur maupun investasi harian.



